

KABE have been making caravan in Sweden for over 60 years, and for 2019 there are over 200 different model variations over five models ranges, Classic, Gemstone, Royal, Hacienda and Imperial. One new model for 2019 is the Imperial 780 TDL FK KS E2. That’s a long name, however when you know how KABE name their models things make more sense. Imperial being the specification, 780 the body length, TDL being full width end washroom, FK is front kitchen, KS means ‘King Size’ 2.5m width and finally E2 twin single beds.

There is no denying that this is a long caravan and it is too long to be towed by an ordinary car in the UK. (Please note that this caravan isn’t available for sale in the UK). There are also longer versions also available, the Imperial Hacienda 1000 TDL being the biggest.

Typical of Swedish caravans, if you want to carry some skis, a pull out ski tray is fitted. The arched door is also a KABE feature.

The front panel incorporates a large gas bottle storage locker which opens with a chrome handle. The single front window flows through to the full width sunroof. Whilst common in UK caravans, a sunroof is still an unusual feature of European caravans. One usual European feature is the long chassis ‘A’ frame.

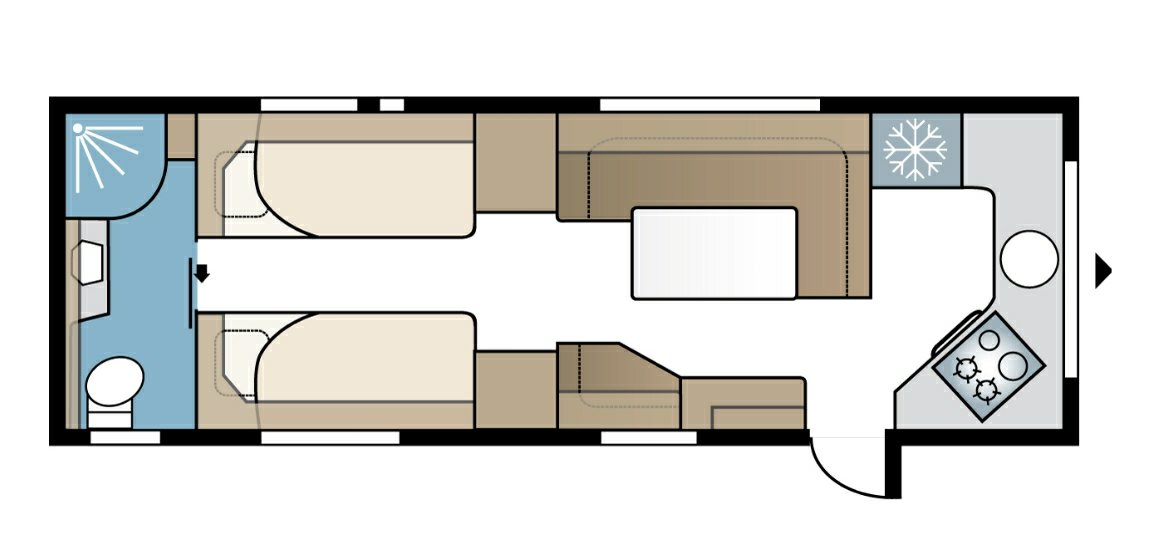
Moving inside, the kitchen covers the full width of the front of the caravan. The large window and sunroof let natural light flood in, and the ample lighting take care when it gets dark.

For the cook there is a two burner and two induction job, oven grill, large Dometic fridge freezer with two way opening doors, and below the sink a microwave.

Storage wise, whilst there isn’t massive roof lockers, the low level cupboard do included carousel baskets.

Aft of the kitchen comes the lounge area with a L shaped sofa, corner seat and a movable foot stool/seat. The leather upholstery shown here is just one option available.

The corner seat is a surprising comfortable place to have a rest. Next to the seat is useful storage with a TV bracket in place.

The foot stool adds to the comfort levels.

Moving furniture back twin storage wardrobes break up the lounge and the bedroom areas.



The offside wardrobe features the Alde central heating unit with easy access to the workings. The base of the wardrobe features a shoe tray, baskets are fitted tonthe side and there is also an illuminated hanging rail.

This being the E2 layout there are twin single beds. The extra width of the caravan also allow for wider beds. As with the rest of the caravan there are plenty of lights fitted.


Ventilation is well thought-out in this caravan. By the side of the bed a manual KABE VarioVent lever to allow fresh air into the caravan from underneath and onbthe offside wall an opening panel gives secure ventilation. The side walls are covered in a fabric material to add insulation and sound deadening too.



Across the rear is the full width washroom. The the right is a circle shower with a handy ledge. In the middle is a the washbasin set into a storage cabinet. No trendy salad bowl sink here. And to the left is the toilet, fitted into the corner. The Alde towel rail is above.

The standard toilet in this model is a Thetford C250 Cassette, however this model is shown with an optional Cinderella incinerator toilet where waste products are burnt by gas into ash. No chemicals are needed and the ash waste can be put on your garden. This isn’t a new idea, it was shown in 2013 when it was called the Cabbyloo.

Specification wise levels are high. A touch screen Dometic panel controls the electrics, a Fresh Jet air conditioning is fitted as is underfloor heating. Things like Al-Ko ATC and alloy wheels naturally are standard items.

Overall the KABE Imperial 780 TDL FK KS E2 is a stunning caravan and one which you could easily spend a long Scandinavian winter holiday as well as a summer holiday in the south of France. All this luxury doesn’t come cheap or at a light weight though.
Caravanning Life rating: ⭐⭐⭐⭐⭐ 5/5
RRP from €79,975, as shown €85,221
Internal length: 23’7″ / 7.20m
Overall length: 30’9″ / 9.37m
Overall width: 8’2″ /2.50m
MRO: 2100kg
MTPLM: 2650kg
Details as supplied by KABE Husvagnar AB http://www.kabe.se
©DB





